登录【网站注册】点击左边“微信账号登陆”图标,微信扫描即自动注册并登陆
搜索
查看: 65909|回复: 355

[模具设计] 陈老师经典模具结构讲解60例之24---前模斜弹+内行位+抽呵

 火... [复制链接]
发表于 2015-6-15 17:35:44 | 显示全部楼层 |阅读模式
优胜陈国华老师根据多年设计经验,精选60套有代表性的模具:包括哈夫行位,爆炸行位,二次顶出,圆弧抽芯,双色模,包胶模,螺纹抽芯,大身,汽车模…..,
对每套模的开模原理,设计注意事项有详细的解说,不是单纯的传资料,每周5套,天天有新模,敬请各位网友期待!


a3.jpg


a4.jpg


c1.jpg


c2.jpg


d7.jpg


产品.jpg

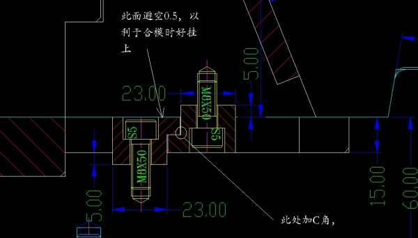
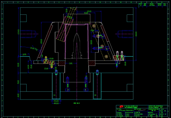
第24套:前模斜弹+内行位+抽呵
开模原理:               
1.        前模油缸抽芯
2.        开始开模,由于A板,推板之间加了弹弓胶,先行被弹开,此时前模弹块被弹簧弹出,为了预防斜弹行位的粘模力太大,不容易弹出;在弹块顶部加两个弹簧,底下加拉钩,同时用力,保证弹块顺利弹出
3.        前后模开模之后,底板与B板随之弹开,产品内有一内扣脱开,
4.        顶棍顶推板,内模镶件抽出,产品脱模

设计注意事项:
1.        A板,推板之间加弹弓胶的目的是防底板上的弹簧弹出,拉坏产品上内扣的胶位
2.        工厂的原图弹块的两侧没有做斜度,这不太好,应该加上1度斜度
游客,如果您要查看本帖隐藏内容请回复

评分

参与人数 1Q币 +16 收起 理由
lhwlhw + 16

查看全部评分

【温馨提示】技术问题请优先发到问答专栏,优胜教师团队将及时回复,谢谢!
发表于 2015-6-20 08:31:14 | 显示全部楼层
        搜索       
热搜: 瓶盖空调图片造型减速器周转箱手机套自行车手机手机后壳dwg叶轮复杂模具T型刀加工汽车产品滑块模具管理系统精雕连接器mastercamx6cad8.5
模具资料网›论坛›热门栏目›优胜专栏›陈老师经典模具结构讲解60例之24 ...› 参与/
该会员没有填写今日想说内容.
回复 支持 反对

使用道具 举报

发表于 2017-8-5 16:27:15 | 显示全部楼层
关注微信号YS88031860登陆更方便,QQ群218838391
# 优胜教师团队免费解答技术问题,提问请发到问答专栏
# 优胜技术支持·张老师 QQ188149720 资料下载相关问题
# 优胜技术支持·莫老师 QQ188149710 软件安装相关问题
# 优胜技术总监·袁老师 QQ594031711 解决技术疑难问题
【温馨提示】技术问题请优先发到问答专栏,优胜教师团队将及时回复,谢谢! ...
回复 支持 反对

使用道具 举报

发表于 2016-3-10 08:29:27 | 显示全部楼层
关注微信号YS88031860登陆更方便,QQ群218838391
# 优胜教师团队免费解答技术问题,提问请发到问答专栏
# 优胜技术支持·张老师 QQ188149720 资料下载相关问题
# 优胜技术支持·莫老师 QQ188149710 软件安装相关问题
# 优胜技术总监·袁老师 QQ594031711 解决技术疑难问题
好,很好, ...
回复 支持 反对

使用道具 举报

发表于 2015-6-15 18:24:23 | 显示全部楼层
RE: 陈老师经典模具结构讲解60例之24---前模斜弹+内行位+抽呵 [修改]
【温馨提示】技术问题请优先发到问答专栏,优胜教师团队将及时回复,谢谢! ...
回复 支持 反对

使用道具 举报

发表于 2015-6-15 21:37:26 | 显示全部楼层
324546576436588675897970
3让54354654
回复 支持 反对

使用道具 举报

发表于 2015-6-15 21:42:46 | 显示全部楼层
顶一个,谢谢大婶的分享先
【温馨提示】技术问题请优先发到问答专栏,优胜教师团队将及时回复,谢谢! ...
回复 支持 反对

使用道具 举报

发表于 2015-6-15 23:19:47 | 显示全部楼层
RE: 陈老师经典模具结构讲解60例之24---前模斜弹+内行位+抽呵
【温馨提示】技术问题请优先发到问答专栏,优胜教师团队将及时回复,谢谢!
回复 支持 反对

使用道具 举报

发表于 2015-6-16 07:30:57 | 显示全部楼层
谢谢分享   ding
大家好
回复 支持 反对

使用道具 举报

发表于 2015-6-16 08:13:01 | 显示全部楼层
顶一个,谢谢分享
【温馨提示】技术问题请优先发到问答专栏,优胜教师团队将及时回复,谢谢!
回复 支持 反对

使用道具 举报

发表于 2015-6-16 08:47:50 | 显示全部楼层
好资料,顶起!!
【温馨提示】技术问题请优先发到问答专栏,优胜教师团队将及时回复,谢谢! ...
回复 支持 反对

使用道具 举报

发表于 2015-6-16 11:53:38 | 显示全部楼层
xczvVZsddsa
【温馨提示】技术问题请优先发到问答专栏,优胜教师团队将及时回复,谢谢! ...
回复 支持 反对

使用道具 举报

您需要登录后才可以回帖 登录 | 立即注册

本版积分规则


快速回复 返回顶部 返回列表