登录【网站注册】点击左边“微信账号登陆”图标,微信扫描即自动注册并登陆
搜索
查看: 17484|回复: 157

[原创教程] 陈老师经典模具结构讲解60例之11---汽辅模具

 火... [复制链接]
发表于 2015-4-27 11:57:33 | 显示全部楼层 |阅读模式
本帖最后由 优胜陈老师 于 2015-4-27 14:44 编辑

优胜陈国华老师根据多年设计经验,精选60套有代表性的模具:包括哈夫行位,爆炸行位,二次顶出,圆弧抽芯,双色模,包胶模,螺纹抽芯,大身,汽车模…..,
对每套模的开模原理,设计注意事项有详细的解说,不是单纯的传资料,每周5套,天天有新模,敬请各位网友期待!


A1.jpg

A2.jpg

A3.jpg

A4.jpg

A5.jpg

A6.jpg

A7.jpg


Q1.jpg

Q2.jpg


Q3.jpg

Q4.jpg

Q5.jpg

W1.jpg

W2.jpg

W5.jpg

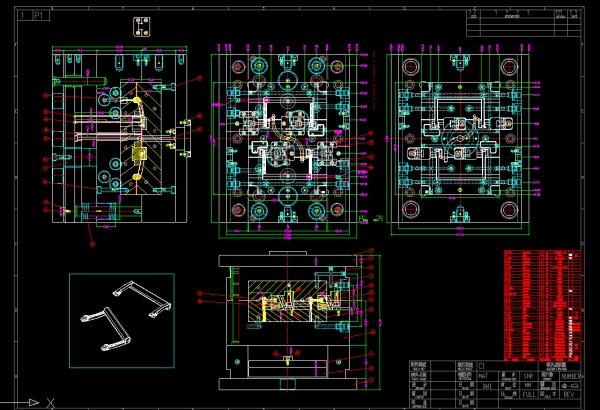
   第11套.充氮气模具
适用范围:胶厚超过4MM时,容易出现过大的缩水,影响产品的外形,使用氮气吹空产品,确保产品外形
工作原理:充气过程是这样的,进胶时,充胶到整个型腔的90%-95%时,开始充氮气,氮气气压应该大于注塑机的背压,一般30MPA左右,氮气替代注塑机保压,保压20-30约秒之后,油缸拉气针后退,氮气卸压3-5秒.
设计注意事项
   1:如图第一套,从产品的底面充气,可以直接镶入气针
   2:如图第二套,从产品的侧面进胶,成型之后,用油缸把气针抽出

游客,如果您要查看本帖隐藏内容请回复




【温馨提示】技术问题请优先发到问答专栏,优胜教师团队将及时回复,谢谢!
发表于 2018-6-9 23:06:08 | 显示全部楼层
顶顶顶顶顶顶顶顶顶顶顶顶顶顶顶顶顶顶顶顶顶顶顶顶顶顶顶顶顶顶顶顶顶顶顶顶顶顶顶顶顶顶顶顶顶顶顶顶顶顶顶顶顶顶顶顶顶顶顶顶顶顶顶顶顶顶顶顶顶顶顶顶顶顶顶顶顶顶顶顶顶顶顶顶顶顶顶顶顶顶顶顶顶顶顶顶顶顶顶顶顶顶顶顶顶顶顶顶顶顶顶顶顶顶顶顶顶顶顶顶顶顶顶顶顶顶顶顶顶顶顶顶顶顶顶顶顶顶顶顶顶顶顶顶顶顶顶顶顶顶顶顶顶顶顶顶顶顶顶顶
的肌肤的细节
回复 支持 反对

使用道具 举报

发表于 2015-6-18 22:45:49 | 显示全部楼层
顶顶顶顶顶顶顶顶顶顶顶顶顶顶顶顶顶顶顶顶顶顶顶顶顶顶顶顶顶顶顶顶顶顶顶顶顶顶顶顶顶顶顶顶顶顶顶顶顶顶顶顶顶顶顶顶顶顶顶顶顶顶顶顶顶顶顶顶顶顶顶顶顶顶顶顶顶顶顶顶顶顶顶顶顶顶顶顶顶顶顶顶顶顶顶顶顶顶顶顶顶顶顶顶顶顶顶顶顶顶顶顶顶顶顶顶顶顶顶顶顶顶顶顶顶顶顶顶顶顶顶顶顶顶顶顶顶顶顶顶顶顶顶顶顶顶顶顶顶顶顶顶顶顶顶顶顶顶顶顶
注册好麻烦 ...
回复 支持 反对

使用道具 举报

发表于 2018-12-27 13:39:52 | 显示全部楼层
顶顶顶顶顶顶顶顶顶顶顶顶顶顶顶顶顶顶顶顶顶顶顶顶顶顶顶顶顶顶顶顶顶顶顶顶顶顶顶顶顶顶顶顶顶顶顶顶顶顶顶顶顶顶顶顶顶顶顶顶顶顶顶顶顶顶顶顶顶顶顶顶顶顶顶顶顶顶顶顶顶顶顶顶
优胜专注教学 技术实力最强 www.ysug.com
回复 支持 反对

使用道具 举报

发表于 2015-4-27 12:28:57 | 显示全部楼层
哇哇  非常棒
心情查查的 ...
回复 支持 反对

使用道具 举报

发表于 2015-4-27 13:09:06 | 显示全部楼层
thank you din din din
tttthank you din din din
回复 支持 反对

使用道具 举报

发表于 2015-4-27 17:35:15 | 显示全部楼层
學學!謝謝樓主分享!!!
优胜专注教学 技术实力最强 www.ysug.com
回复 支持 反对

使用道具 举报

发表于 2015-4-27 22:51:49 | 显示全部楼层
7iii7tr7i77
【温馨提示】技术问题请优先发到问答专栏,优胜教师团队将及时回复,谢谢! ...
回复 支持 反对

使用道具 举报

您需要登录后才可以回帖 登录 | 立即注册

本版积分规则


快速回复 返回顶部 返回列表