登录【网站注册】点击左边“微信账号登陆”图标,微信扫描即自动注册并登陆
搜索
查看: 1856|回复: 9

[原创教程] 如何在HyDraw CAD中实现元件符号的自定义

[复制链接]
发表于 2023-6-20 17:24:33 | 显示全部楼层 |阅读模式
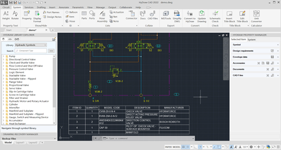
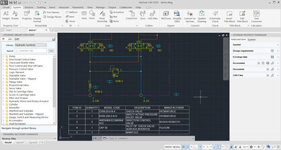
HyDraw是一款使用自带二维CAD引擎的油路设计软件,其二维 CAD 界面和命令行控件与AutoCAD相似,能够快速设计专业、无差错液压回路,自动生成物料清单。
1.png
使用HyDrawCAD设计液压原理图有以下优势:依照ISO1219-1:2012标准绘制液压原理图;在设计中应用数据库数据,且数据与液压元件符号关联;自动生成BOM表和阀孔列表;原理图可以直接导入到MDTools软件生成三维阀块模型。
2.png
虽然HyDrawCAD自带有非常多类型的元件符号库,但对于库中没有的元件符号,我们该如何做自定义呢?
首先在符号库界面找到想要自定义的符号类型,选择编辑库文件。
3.png
找到类似符号并复制一个出来,选择编辑。
4.png
进入到符号编辑界面。在这里我们可以对符号中不需要的部分进行删改,或是用右侧的符号块进行添加;也可以编辑端口信息。例如在这个实例中,我删去了Y端口和元件四周的方框,并对端口信息做了修改。
5.png 6.png

得到修改完成的符号后便可以将其保存在符号库中,便于以后的调用。
使用HyDraw CAD和MDTools联合设计阀块,方便快捷。在HyDraw中生成的原理图,都有相应的孔腔对应。将HyDraw原理图直接导出至MDTools,相同油路的孔腔会用相同颜色进行标注,在阀块设计时依照不同的孔腔颜色进行连接即可,极大节约了设计时间。

7.png
南京东岱软件
发表于 2023-6-26 14:10:15 | 显示全部楼层
哇 HyDraw画液压系统原理图太方便了
sddskjsdlkzlsjlhflks ...
回复 支持 反对

使用道具 举报

发表于 2023-6-26 15:36:17 | 显示全部楼层
HyDraw是一款使用自带二维CAD引擎的油路设计软件,
123开心
回复 支持 反对

使用道具 举报

发表于 2023-6-27 13:37:00 | 显示全部楼层
HyDraw绘制原理图太方便了
【温馨提示】技术问题 ...
回复 支持 反对

使用道具 举报

发表于 2023-6-27 14:30:29 | 显示全部楼层
哇 HyDraw画液压系统原理图太方便了
优胜专注教学 技术实力最强 www.ysug.com
回复 支持 反对

使用道具 举报

发表于 2023-6-29 10:13:19 | 显示全部楼层
HyDrawCAD与AutoCAD相似的设计界面不仅带给用户以亲切熟悉之感的同时也使没有使用经验的用户可以轻松上手。可以轻松快速地设计绘制出专业的、毫无差错的液压回路,而且还能自动生成物料清单.
【温馨提示】技术问题请优先发到问答专栏,优胜教师团 ...
回复 支持 反对

使用道具 举报

发表于 2023-6-29 14:19:15 | 显示全部楼层
如果符号库建立完全,绘制原理图确实很方便
【温馨提示】技术问题请优先发到问答专栏,优胜教师团队将及时回复,谢谢! ...
回复 支持 反对

使用道具 举报

发表于 2023-6-30 12:35:28 | 显示全部楼层
使用HyDraw进行液压原理图的设计会大幅度提升工作效率。
积分卡和副科级啊
回复 支持 反对

使用道具 举报

发表于 2023-7-3 16:54:31 | 显示全部楼层
HyDraw是一款使用自带二维CAD引擎的油路设计软件,其二维 CAD 界面和命令行控件与AutoCAD相似,能够快速设计专业、无差错液压回路
优胜专注教学 技术实力最强 www.ysug.com
回复 支持 反对

使用道具 举报

发表于 2023-7-4 15:20:31 | 显示全部楼层
hydraw做液压原理图设计便捷高效
wwwss试试看
回复 支持 反对

使用道具 举报

您需要登录后才可以回帖 登录 | 立即注册

本版积分规则


快速回复 返回顶部 返回列表