登录【网站注册】点击左边“微信账号登陆”图标,微信扫描即自动注册并登陆
搜索
查看: 11881|回复: 0

[转载文章] G02(G03)顺(逆)时针方向圆弧插补图文详解

[复制链接]
发表于 2018-4-26 15:56:45 | 显示全部楼层 |阅读模式
G02------顺时针方向圆弧插补(注意此方向是以后置刀架为准)
格式1:G02X(u)__Z(w)__F__
(1)G02也可以写成G2。
说明:(1)不能用于整圆的编程G02------顺时针方向圆弧插补(注意此方向是以后置刀架为准)
(2)R为工件单边R弧的半径。R为带符号,“+”表示圆弧角小于180度; “-”表示圆弧角大于180度。其中“+”可以省略。
G03------逆时针方向圆弧插补(注意此方向是以后置刀架为准)
格式2:G03X(u)__Z(w)__F__
说明:除了圆弧旋转方向相反外,格式与G02指令相同。
1.jpg 2.jpg


圆弧插补G02、G03
    该指令控制数控机床在各坐标平面内执行圆弧运动,将工件切削出圆弧轮廓,该指令使刀具从圆弧起点沿圆弧移动到圆弧终点,如图8—5所示。
    (1)指令格式:
3.jpg
    G02(G03)X(U)    Z(W)    I    K   F  或
    G02(G03)X(U)    Z(W)    R   F
    G02——顺时针(CW);
    G03——逆时针(CCW);
    图8—5圆弧插补G02、G03    X,Z——坐标系里的终点坐标; U,W——起点与终点之间的距离; I,K——从起点到中心点的矢量(半径值);
    (2)方向判别沿着垂直于圆弧所在平面的坐标轴(y轴)负方向看,顺时针为G02,逆时针为G03,如图8—6所示。

4.png
    图8-6  圆弧插补的方向判别
用地址X,Z或者U,W指定圆弧的终点,分别为用绝对值或增量值表示。增量值是从圆弧的始点到终点的距离值。圆弧中心用地址工,K指定,它们分别对应于X,Z轴。K后面的数值是从圆弧始点到圆心的矢量分量,是增量值。
a.圆弧终点位置指刀具切削圆弧的最后一点。
    b.绝对状态指X、Z两坐标在工件坐标系中的终点位置。
    c.相对状态  指X、Z两坐标在工件坐标系中从起点到终点的增量距离。
    d.圆弧中心J、K、R的含义
    ·J:从起点到圆心的矢量在X轴方向的投影。
    ·K:从起点到圆心的矢量在Z轴方向的投影。
    ·R:圆弧半径。
编程实例:
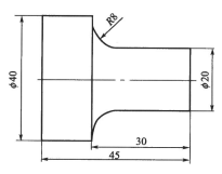
5.png
(a) 顺时针圆弧插补
M03S800
T0101G99
G00 X42 Z2
X20
G01 Z-22 F0.2
G02 X36 Z-30 R8或者G02 X36 Z-30 I 16 KO F0.2
G01 X40
Z-45
G00 X100 Z100
M30
6.png
(b)逆时针圆弧插补
M03S800
T0101G99
G00 X42 Z2
X20
G01 Z-30 F0.2
X24
G03 X40 Z-38 R8或者G03 X40 Z-38 I0 K-8 F0.2
G01 Z-45
G00 X100 Z100
M30
7.png
【温馨提示】技术问题请优先发到问答专栏,优胜教师团队将及时回复,谢谢!
您需要登录后才可以回帖 登录 | 立即注册

本版积分规则


快速回复 返回顶部 返回列表