登录【网站注册】点击左边“微信账号登陆”图标,微信扫描即自动注册并登陆
搜索
查看: 2008|回复: 0

[分享资料] 汽车前大灯反射镜热固性注塑模具的设计方式(一)

[复制链接]
发表于 2018-3-20 20:35:12 | 显示全部楼层 |阅读模式
汽车前大灯反射镜(又名反光镜)是汽车前大灯照明系统起反射功能避免灯光直射的零件,位于透镜与装饰框内侧,与透镜装配在一起,通过透镜可以从车灯外面看到反射镜。塑件为外观件,表面镀铝,属于高光电镀件,外表面有大面积花纹,用于表面装饰。车灯是汽车配套必不可少的重要安全装置与装饰件,反射镜由于高温工作的环境,以及具有反射聚光作用,需要采用收缩率几乎为0,且具有耐热,阻燃,极强抗蠕变性的预制整体模塑料(BMC)热固性塑料成型。这种材料以前一直采用压铸成型工艺,由于生产效率低,废品率高,同时由于该材料对人体有害,压铸生产中需频繁人工取料称料等工序,因而对操作人员的健康带来一定的危险。为此发展BMC材料的注塑成型工艺替代压铸成型工艺已成必然趋势。
本文以汽车前大灯反射镜零件为例,详细介绍汽车前大灯反射镜注塑模具的设计要点与技术总结。汽车前大灯反射镜零件如图1所示:

1.jpg
图1 汽车前大灯反射镜零件图
1. 塑件外观要求与结构分析
图1所示为某品牌汽车前大灯反射镜零件图,材料为BMC,属于热固性塑料。该材料为特硬性材料,缩水率几乎为零,在模具设计时不需要放收缩率。因为其是特硬塑料,具有尺寸精度高、加工性能好等优点,缺点是流动性较差。塑件外表面需电镀(一般镀铝),塑件为外观件,表面要求高。
塑件尺寸为:216.9×200.8×161.7mm。塑件的结构特点如下:
1)外观面要求极高,外观面不允许有斑点和浇口痕迹,更不允许有收缩凹陷、熔接痕和飞边等缺陷。
2)塑件为电镀件,有严格的配光要求,外观面镀铝。外观面脱模斜度设计要合理,一般至少要保证5°以上。
3)塑件外形复杂,曲面光洁度高,塑件内外侧无倒扣,不需要侧向抽芯,塑件为左右镜像件。
2. BMC材料注塑成型工艺过程
将冷藏的BMC材料加入专门生产BMC材料的注塑机料筒,通过螺杆旋转产生剪切热,使其在较低温度(25摄氏度)熔融,然后在高压下将稠胶状的物料注入预先加热达140-160摄氏度的模具中。在高温作用下,进行化学反应,经保压后固化成型,开模取出得到成型塑件,最后用气枪吹尽型腔里的毛边及碎片,模具合模进行下一循环。
3. 模具结构分析
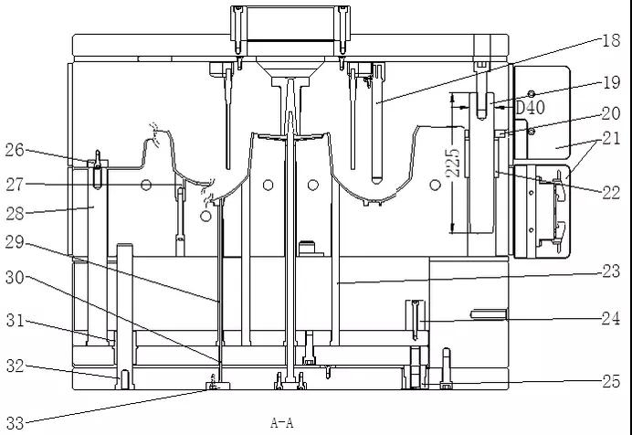
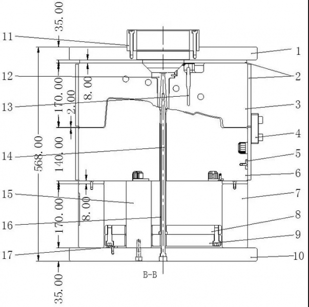
汽车前大灯反射镜为左右镜像件,型腔数为1+1,模具采用了冷流道的浇注系统。本塑件内外侧面无倒扣,因此没有侧向抽芯机构。模具外形尺寸为:700×500×568(mm),总重量约1吨,属于中型注塑模具。详细结构见图2-图4。

2.jpg
图2 汽车前大灯反射镜注塑模具结构图1
3.jpg
图3 汽车前大灯反射镜注塑模具结构图2
4.jpg
图4汽车前大灯反射镜注塑模具结构图3
1.面板;2.隔热板;3.A板;4.锁模块;5.压线块;6.B板;7.方铁;8.推杆固定板;9.推杆底板;10.底板;11.定位圈;12.机嘴;13.感温针;14.推管针;15.支撑柱;16.推管;17.垃圾钉;18.加热管19.导柱;20.承压板;21.接线盒保护块;22.导套;23.推杆;24.限位块;25.拉复位;26.复位快;27.动模镶件;28.复位杆;29.推管套;30.推管针; 31.推杆板导套;32.推杆板导柱;33.推管针压块;
图2、图3、图4为汽车前大灯反射镜的模具结构图。其基本结构虽与热塑性注塑模类似,但与后者相比,存在如下典型区别与特点:
(1)模具倒做
这里所说的模具倒做不是倒装模。一般模具型腔设在定模,型芯设在动模。由于反射镜塑件型芯为多曲面反射与聚光工作面,需要很低的粗糙度,绝对不能设置推杆等顶出装置,因此模具必须倒做,即凸出的型芯(反射镜工作面)设在定模,凹进的型腔设在动模。
(2)模具需要加热管加热并严格控温
BMC材料的注塑成型工艺与普通热塑性注塑成型工艺完全不同,在注塑机的料筒部分需用专用冷冻机冰水冷却,而在模具型腔型芯则需要电加热。
可用如下公式计算定动模所需电热管总功率W:
W=Gcp(Tm-To)/3600yt
G:模具定动模总重量,kg
cp:模具材料比热容,kj/(kg.°C)
Tm:模具成型所需的温度:°C
To:室温:°C
y:加热器效率,取0.3-0.5
t:加热升温时间,h.
一般采用的电热管直径为15.8mm,可以较快提高模具温度。根据经验模具加热功率可按(40-50)W/kg计算所需电热管功率。塑件成型面距离电热管40-50mm,两电热管之间距离为80-100mm。为提高加热效率,定动模四面均需设计一8mm厚的电木隔热板,因电热管无正负极,可以串联连接,但温控器插座每组不可超过3.6KW。每组电热管的温度由一组热电偶控制,热电偶应处于本组电热管温度场的中心,并且热电偶头需与型腔有效接触,有利于准确控制温度。
(3)模具的流道系统需控温
由于热固性注塑模成型的材料超过一定温度即起化学交联反应而固化,固化的浇注系统凝料不可回收,只能做废料处理,因此采用无浇注系统凝料的流道具有重要意义。因此模具的浇口套需冷水冷却。为了减少注塑过程中产生过多剪切热,同时提高注塑速度,不让熔融的BMC材料充满高温型腔前固化,一般在动模开设扇形分流道,浇口厚度为2.0-2.5mm。
(4)模具分型面的要求
BMC材料的粘度比热塑性塑料低,分型面上不允许存在任何孔与凹坑,滑块锁紧块,压块等不允许设置在模仁处,否则会造成飞边清理困难的问题。
(5)模具型腔的排气需加强
普通的热塑性塑料成型是物理变化过程,而热固性塑料的注塑成型是化学反应过程,发生化学反应时会生成大量挥发性气体,这些气体对注塑成型产生很大阻力,导致塑件表面有气泡与缺料,同时气体经压缩产生高温烧焦塑件。因此热固性注塑成型模具型腔的排气就显得尤为重要,一般模具分型面,定动模镶件底部需设置耐高温密封圈,在定模型腔料流末端采用抽真空来克服成型缺陷,同时也便于提高注塑速度。
(6)塑件的精度要求高
车灯反射镜的配光要求极高,对其模具反射面的粗糙度,加工与装配精度都有极高要求。模具除了模胚边锁与导柱定位外,还需设计模仁止口定位,确保模具的三级定位可靠。反射镜多面体的配光纹的面积较小,无法进行手工抛光,必须采用精密五轴高速CNC加工机床,机床主轴转速达到每分钟20000转以上。采用先进的CAM技术与特制刀具,选择合理的加工工艺,一次加工到位。型腔精度要求为0.01-0.02mm,型腔表面粗糙度为0.05-0.10微米。
更多图片 小图 大图
组图打开中,请稍候......
【温馨提示】从优胜服务号YS2025登录本论坛更方便,欢迎您的访问,谢谢!
您需要登录后才可以回帖 登录 | 立即注册

本版积分规则


快速回复 返回顶部 返回列表