登录【网站注册】点击左边“微信账号登陆”图标,微信扫描即自动注册并登陆
搜索
查看: 1251|回复: 0

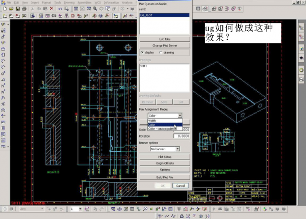
[问题讨论] 请问NX10.0制图如何把线条变成彩色?

[复制链接]
发表于 2017-11-22 14:41:24 | 显示全部楼层 |阅读模式
请问如何设置使得每次进入制图模块是视图的曲线是彩色的?如图中效果一样。(背景黑色可以不管)
猎豹截图20171122141948.png
【温馨提示】技术问题请优先发到问答专栏,优胜教师团队将及时回复,谢谢!
您需要登录后才可以回帖 登录 | 立即注册

本版积分规则


快速回复 返回顶部 返回列表