登录【网站注册】点击左边“微信账号登陆”图标,微信扫描即自动注册并登陆
搜索
查看: 1581|回复: 0

[分享资料] 加强板的冲压模具设计实例

[复制链接]
发表于 2017-5-4 19:47:16 | 显示全部楼层 |阅读模式
加强板的冲压模具设计实例


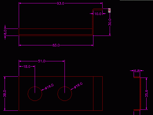
今天要说的加强板这个产品是属于建筑五金这一块的,当然,也有很多其它的产品上有这个部件,只是名字叫法相同,而产品的形状就大不一样了.下面介绍的这个加强板是用1.2厚的冷轧板为原材料来进行冲压加工的,先来看看产品图,如下:
7.GIF

加强板

首先得说明一下,该产品图画得不标准,最右边的一个视图还有一个折弯边没有表达出来,再来看看展开图,如下:
8.GIF

加强板

在展开的过程里,我将折弯处加了两个退刀槽,上图中的两个半圆就是加进来的.然后我们来看看排样图,如下:
9.GIF

加强板

从排样图中已经能清楚地看出每一个工步的工作过程,这里就不再多说,模具总装图如下:
10.GIF

加强板

好了,就写到这里,这个产品唯一要说的地方是,在其中一个单边折弯的地方,我采用的是向上折弯,所以下模的压料力要求要大,才能保证产品在冲压时不会拉料,上模用滑块结构,以保证能顺利脱料!
【温馨提示】技术问题请优先发到问答专栏,优胜教师团队将及时回复,谢谢!
您需要登录后才可以回帖 登录 | 立即注册

本版积分规则


快速回复 返回顶部 返回列表