登录【网站注册】点击左边“微信账号登陆”图标,微信扫描即自动注册并登陆
搜索
查看: 2151|回复: 0

[模具制造] 中望3D全面支持二三维数据交互兼容

[复制链接]
发表于 2015-10-29 17:35:34 | 显示全部楼层 |阅读模式
工业制造
上传图片: -
企业名称: 广州中望龙腾软件股份有限公司
公司地址: 广州市天河区天河北路886号4楼
公司网站: http://www.zw3d.com.cn/
联系方式: 020-38289780
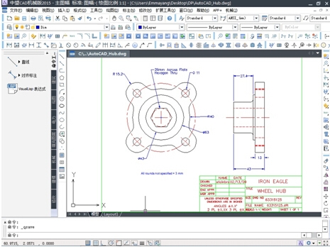
内容简介: 中望3D作为国内专业高效的CAD/CAM一体化的三维CAD设计软件,能轻松、高效地满足客户在转型升级过程中,数据兼容、交互的需求。现在以二维CAD制作的图纸“Wheel Hub”为例,向大家介绍下中望3D如何实现二维数据与三维数据之间的完美兼容、交互
本帖最后由 zw3dservice 于 2015-10-29 17:37 编辑

本文关键词:中望3D CAD/CAM 图层 三维CAD
       从二维CAD设计到三维CAD设计的升级转变,已成为不少企业在当前市场环境下,增强产品核心竞争力,转型升级的重要途径。在这个转型升级的过渡阶段,企业对设计数据的应用需求大体可分为两类:利用已有的二维数据进行三维产品的设计;在使用三维CAD设计好产品之后,需在二维CAD软件中完美兼容呈现,以便后期指导车间生产,或者对外部进行数据交互。
       中望3D作为国内专业高效的CAD/CAM一体化的三维CAD设计软件,能轻松、高效地满足客户在转型升级过程中,数据兼容、交互的需求。现在以二维CAD制作的图纸“Wheel Hub”为例,向大家介绍下中望3D如何实现二维数据与三维数据之间的完美兼容、交互:

1.jpg

图/“Wheel Hub”的二维图纸



       第一,基于二维图纸数据,实现准确的三维建模效果
       一般在使用二维CAD软件进行设计时,设计师习惯使用“图层管理”对制作的图纸元素进行管理,方便后续设计过程中的操作与调整。

2.jpg

图/二维CAD图层特性管理器设置界面



       对此,中望3D在三维建模环境与工程图环境中均具备了图层管理的功能,能很好的满足设计师对图层管理的需要。同时,中望3D还能对二维图纸中原有的图层进行兼容。

3.jpg

图/中望3D中具备图层管理器功能



4.jpg

图/中望3D图层管理器设置界面1



5.jpg

图/中望3D图层管理器设置界面2



       从以上图层管理器设置界面截图可看出,中望3D的图层管理界面跟二维CAD是非常相似,设计师无需重新适应新的界面,可延续原来的操作习惯直接在中望3D上进行操作。另一方面,中望3D能够准确读取二维图纸中的图层,并且可进行打开、关闭、冻结、新建、删除等一系列操作。

6.jpg

图/用中望3D进行图层操作的结果展示图1



7.jpg

图/用中望3D进行图层操作的结果展示图2



       基于前面导入的“Wheel Hub”二维图纸,用中望3D进行三维建模,建模效果与原来相关的二维设计数据保持完全一致,保证了绘图的准确性。
8.jpg

图/基于二维图纸数据的建模效果



       第二,按需导出,三维模型数据快速转化为二维图纸
       将三维模型生成后的图纸转换为二维CAD图纸,然后通过CAD软件中进行读取查阅,是很多企业普遍存在的现实需求。中望3D也提供了相应的导出功能,全面支持DWG、DXF等常见二维图纸格式,而在导出时,还完美兼容各种二维CAD版本。设计师可根据实际需要对输出的版本进行选择,并对所导出的图纸的信息进行个性化处理。

9.jpg

图/中望3D导出二维图纸操作界面



       小结:中望3D的超强兼容性,能完美支持二维CAD与三维CAD数据之间双向交互。与此同时,在数据交互过程中,中望3D的操作界面、流程等与主流的二维CAD软件相对一致,使设计师们在使用中望3D时,能快速掌握操作方法,有效提高工作效率,更好地进行内外部的交流与协作。

       中望3D 2015 SP版已于9月22日发布,全面升级的版本更稳定,更高效,下载体验:http://www.zw3d.com.cn/product-58-1.html

gjyfkjyukg我
您需要登录后才可以回帖 登录 | 立即注册

本版积分规则


快速回复 返回顶部 返回列表