登录【网站注册】点击左边“微信账号登陆”图标,微信扫描即自动注册并登陆
搜索
查看: 1533|回复: 0

[求购产品] 求助!寻矩形型材冲孔设备。

[复制链接]
发表于 2013-8-15 14:55:29 | 显示全部楼层 |阅读模式
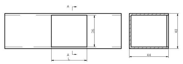
铝矩形管材40X44 壁厚2mm,冲孔两边沿管壁,孔长L=40-200,管材长<5000mm,单件上2-3个孔,孔距不固定、不等距。
已经做过实验,冲孔后管壁稍有变形。请各位高手大侠指点、分析下,想买一台带自动送料的冲孔设备,能否运用的上!

冲孔图

冲孔图
样件.jpg
优胜专注教学 技术实力最强 www.ysug.com
您需要登录后才可以回帖 登录 | 立即注册

本版积分规则


快速回复 返回顶部 返回列表